
Miniature Bearings Australia
SC042C-038-C-SK-CZ - Datasheet
Brighton Best
Category Information
Screws - Socket Cap - Zinc PlatedZinc Plated Socket Cap Screws. UNC - UNF - METRIC - Alloy Steel.
- An expanded range may be available on special order. Please enquire.
 - Imperial Sizes to ANSI B18.3.
 - Metric Sizes to DIN912.
 
Product Data
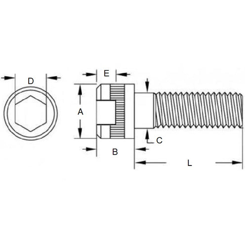
- Thread Size (C) : 8-32 UNC (4.17mm)
 - Thread Length (L) 
38.1
mm
(Equiv. 1.5 in.) - Material Zinc Plated Steel
 - Head Length (B Max.) 4.2 mm
 - Head Diameter (A Max.) 6.9 mm
 - Drive Depth (E) 1.96 mm
 - Shank Diameter (C) 4.03 - 4.17 mm
 - Hex Key (D) 3.57 (9/64) mm
 - Min thread Length 22.3 mm
 - Material Zinc Plated Steel
 
Product Compliance and Data
Additional Resources
- Screws & Nuts Catalogue
 - Shoulder Screws Catalogue
 - Socket Set (Grub) Screws Catalogue
 - Thumb Screws & Thumb Nuts Catalogue
 - Thread Size Chart - Combined Imperial & Metric
 
Cross References
- Brighton Best 872093
 - 90128A203
 


