
Miniature Bearings Australia
SHLD095-013-SKT-L-S3 - Datasheet
MBA
Category Information
Screws - Shoulder - Socket Head - 303 Stainless303 Stainless Socket Head Shoulder Screws. 303 Stainless Steel
- Also known as Pivot Pin, Fulcrum Screw, Stripper Bolt, Stepped Screw and Shoulder Socket Cap Screw
Product Data
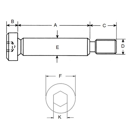
- Shoulder Diameter (E)
:
9.525
mm
+ 0.000 / - 0.076
(Equiv. 0.375 in.) - Shoulder Length (A)
12.700
mm
(Equiv. 0.5 in.) - Thread (D) 5/16-18 UNC
- Max. Thread Length (C) 12.70 mm
- Head Height (B) 6.35 mm
- Head Diameter (F) 14.29 mm
- Allen Key Size 4.76 mm
- Material Stainless Steel 303/304 (Similar to A2, 18-8) HRB80
Product Compliance and Data
Additional Resources
- Screws & Nuts Catalogue
- Shoulder Screws Catalogue
- Socket Set (Grub) Screws Catalogue
- Thumb Screws & Thumb Nuts Catalogue
- Thread Size Chart - Combined Imperial & Metric
Cross References
- A9X251216A
- A9X25-1216A


