
Miniature Bearings Australia
SHLD080-040-SKT-C - Datasheet
Brighton Best
Category Information
Screws - Shoulder - Socket Head - Carbon SteelCarbon Steel Socket Head Shoulder Screws. Hardened
- Also known as Pivot Pin, Fulcrum Screw, Stripper Bolt, Stepped Screw and Shoulder Socket Cap Screw
Product Data
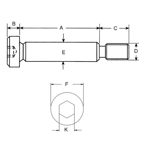
- Shoulder Diameter (E)
:
8.000
mm
- 0.010 / - 0.040
(Equiv. 0.315 in.) - Shoulder Length (A)
40.000
mm
(Equiv. 1.575 in.) - Thread (D) M6x1.0
- Max. Thread Length (C) 11.00 mm
- Head Height (B) 5.50 mm
- Head Diameter (F) 13.00 mm
- Allen Key Size 4.00 mm
- Material Carbon Steel - Hardened
Product Compliance and Data
Additional Resources
- Screws & Nuts Catalogue
- Shoulder Screws Catalogue
- Socket Set (Grub) Screws Catalogue
- Thumb Screws & Thumb Nuts Catalogue
- Thread Size Chart - Combined Imperial & Metric
Cross References
- Brighton Best 537120
- 92981A206
- HSS6-40
- HSS640


