
Miniature Bearings Australia
SHLD079-019-SKT-C - Datasheet
Brighton Best
Category Information
Screws - Shoulder - Socket Head - Carbon SteelCarbon Steel Socket Head Shoulder Screws. Hardened
- Also known as Pivot Pin, Fulcrum Screw, Stripper Bolt, Stepped Screw and Shoulder Socket Cap Screw
Product Data
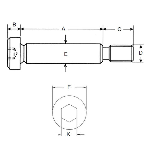
- Shoulder Diameter (E)
:
7.938
mm
- 0.010 / - 0.040
(Equiv. 0.313 in.) - Shoulder Length (A)
19.050
mm
(Equiv. 0.75 in.) - Thread (D) 1/4-20 UNC
- Max. Thread Length (C) 11.11 mm
- Head Height (B) 5.56 mm
- Head Diameter (F) 12.70 mm
- Allen Key Size 3.97 mm
- Material Carbon Steel - Hardened
Product Compliance and Data
Additional Resources
- Screws & Nuts Catalogue
- Shoulder Screws Catalogue
- Socket Set (Grub) Screws Catalogue
- Thumb Screws & Thumb Nuts Catalogue
- Thread Size Chart - Combined Imperial & Metric
Cross References
- Brighton Best 221031
- 91259A581
- Small Parts SHDA-5-12
- SHDA512
- BRB221031P
- BRB-221031P
- HK08022
- HK-08022


