
Miniature Bearings Australia
SHLD032-003-SKT-P-S3 - Datasheet
MBA
Category Information
Screws - Shoulder - Socket Head - 303 Stainless303 Stainless Socket Head Shoulder Screws. 303 Stainless Steel
- Also known as Pivot Pin, Fulcrum Screw, Stripper Bolt, Stepped Screw and Shoulder Socket Cap Screw
Product Data
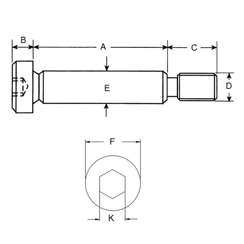
- Shoulder Diameter (E)
:
3.175
mm
- 0.013 / - 0.038
(Equiv. 0.125 in.) - Shoulder Length (A)
3.210
mm
(Equiv. 0.126 in.) - Thread (D) 4-40 UNC
- Max. Thread Length (C) 3.96 mm
- Head Height (B) 3.18 mm
- Head Diameter (F) 6.35 mm
- Allen Key Size 1.98 mm
- Thread Type Class 3A Thread
- Material Stainless Steel 303/304 (Similar to A2, 18-8) HRB80
Product Compliance and Data
Additional Resources
- Screws & Nuts Catalogue
- Shoulder Screws Catalogue
- Socket Set (Grub) Screws Catalogue
- Thumb Screws & Thumb Nuts Catalogue
- Thread Size Chart - Combined Imperial & Metric
Cross References
- 94035A511
- S7092YG440404
- S7092Y-G44-0404


