
Miniature Bearings Australia
SHLD127-010-SKT-J-C - Datasheet
MBA
Category Information
Screws - Shoulder - Jig and FixtureJig and Fixture Shoulder Screws. Used in construction of tool, jig and fixture work. 4140L heat treated steel with black oxide finish.
- Also known as Pivot Pin, Fulcrum Screw, Stripper Bolt, Stepped Screw and Shoulder Socket Cap Screw
Product Data
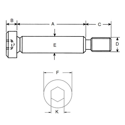
- Shoulder Diameter (E)
:
12.700
mm
- 0.051 / - 0.102
(Equiv. 0.5 in.) - Shoulder Length (A)
9.525
mm
(Equiv. 0.375 in.) - Thread (D) 5/16-18 UNC
- Max. Thread Length (C) 12.70 mm
- Head Height (B) 6.35 mm
- Head Diameter (F) 19.05 mm
- Hex Key Size 6.35 mm
- Material Steel 4140L Heat Treated
Product Compliance and Data
Additional Resources
- Screws & Nuts Catalogue
- Shoulder Screws Catalogue
- Socket Set (Grub) Screws Catalogue
- Thumb Screws & Thumb Nuts Catalogue
- Thread Size Chart - Combined Imperial & Metric
Cross References
- SS-3


